• 1
  • 2
  • 3
  • 1
  • 2
  • 3

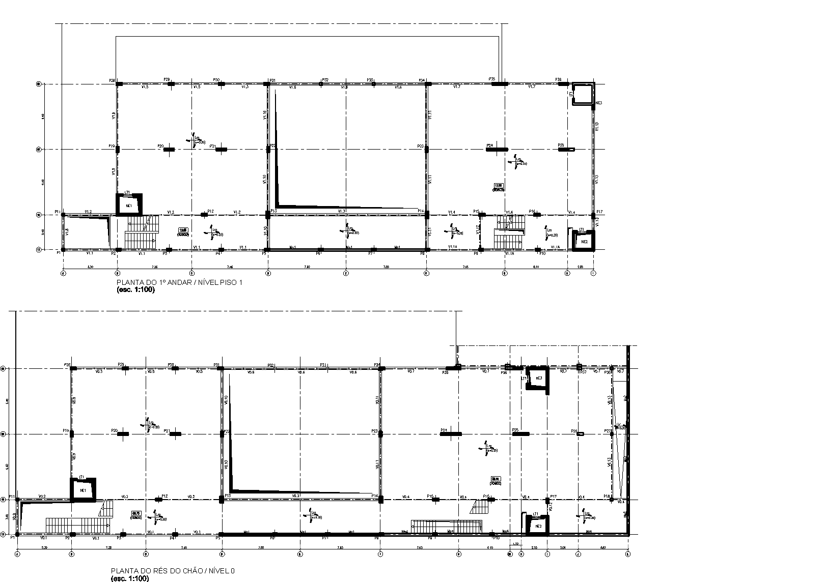
SPORT ALGÉS E DAFUNDO

Algés, Portugal

  • CLIENTE

    Sport Algés e Dafundo
  • ATIVIDADE

    Projeto de Estruturas.
  • ANO

    2006
  • DESCRIÇÃO

    Estrutura em betão armado para o edifício da escola do clube Sport Algés e Dafundo - formação em desportos náuticos - no nó urbano Algés/Restelo.

Trimétrica Engenharia lda
Av. Elias Garcia, 79 - 2.º
1050-097 Lisboa, Portugal

Telefone: +351 217941255

E-mail: geral [at] trimetrica.pt